Мы используем куки-файлы. Соглашение об использовании

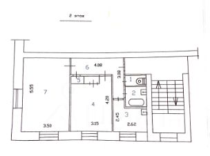
Продается 2-комн. квартира, 48,1 м²

Общая площадь48,1 м²
Жилая площадь30,1 м²
Площадь кухни5,5 м²
Этаж2 из 5
Год постройки1973
Двухкомнатная квартира на 2-м этаже. Рядом ЖД вокзал и вся инфраструктура. Дом кирпичный 1974 года постройки. Теплая и светлая. Документы готовы к сделке! Свободна от проживания. Без долгов и обременений. Без перепланировок. Юридически чистая. Взрослые собственники. Владеют с 2008 года. Быстрый выход на сделку и передача ключей. Удобная планировка.Все комнаты изолированные, окна выходят во двор, раздельный санузел. Во дворе есть детская и спортивная площадки. Открытая парковка для автомобилей Вдоль дома современная прогулочная аллея с зонами отдыха . В доме расположены крупные магазины Титан и Пятерочка Вся инфраструктура в шаговой доступности. До центра города 5 минут на машине. Школа 65, Гимназия 14, детский сад 61, БГУ, БГСХА, Центр культуры ВСЖД, Школа искусств N5, поликлиника, Парк Железнодорожников, ТД Юбилейный, аптеки, банки — все рядом!!! Остановка трамвая и автобусная - 400 м. Звоните ! Отвечу на все ваши вопросы! Ждём вас на просмотр квартиры в светлое время суток. Требуется предварительная запись по телефону.
Позвоните автору
Вам ответят на все вопросы

О квартире

Тип жилья

Вторичка

Общая площадь

48,1 м²

Жилая площадь

30,1 м²

Площадь кухни

5,5 м²

Высота потолков

2,5 м

Санузел

1 раздельный

Вид из окон

Во двор

Ремонт

Без ремонта

Перепланировка

Не было

О доме

Год постройки

1973

Тип перекрытий

Нет информации

Подъезды

6

Парковка

Наземная

Отопление

Центральное

Аварийность

Нет

Юридические особенности

Несовершеннолетние собственники

Нет

Материнский капитал при покупке

Не использовался

Доступная среда

Входная дверь не указана
Двери в ванную и санузел не указаны
Двери в комнаты и кухню не указаны
Спросите умного помощника
Получите экспертное мнение о жилье

Расположение

Ипотечный калькулятор
  • Базовая
  • Семейная
  • ИТ-ипотека
  • 20%
  • 30%
  • 40%
  • 50%
лет
  • 10 лет
  • 20 лет
  • 30 лет
Загружаем предложения от застройщика и банков
Помощь риелтора
Проверенный риелтор поможет купить или продать квартиру
6 250 000 ₽
Цена за метр
129 938 ₽/м²
Условия сделки
свободная продажа
Ипотека
возможна
Агентство недвижимости
Документы проверены
На Циан
8 лет
Объектов в работе
20